Schulzentrum Kinderhaus in Münster . Nachdem Gewinn des Wettbewerbs haben wir das anschließende Verhandlungsverfahren erfolgreich zu unseren Gunsten entschieden und wurden mit der Errichtung der Grundschule mit Ganztagsbetreuung und der Mensa für den Schulkomplex beauftragt . Ein weiterer sich anschließender Auftrag ist die Sanierung der Fassade und der Umbau und die Neuordnung des Bestandsbaus von Harald Deilmann, der inklusive der Außenanlagen unter Denkmalschutz steht .

1 . Preis Wettbewerb . 2017

Fertigstellung 2022

Auftrag . LPH 1-9

Bauherr . Stadt Münster

. Schulhof

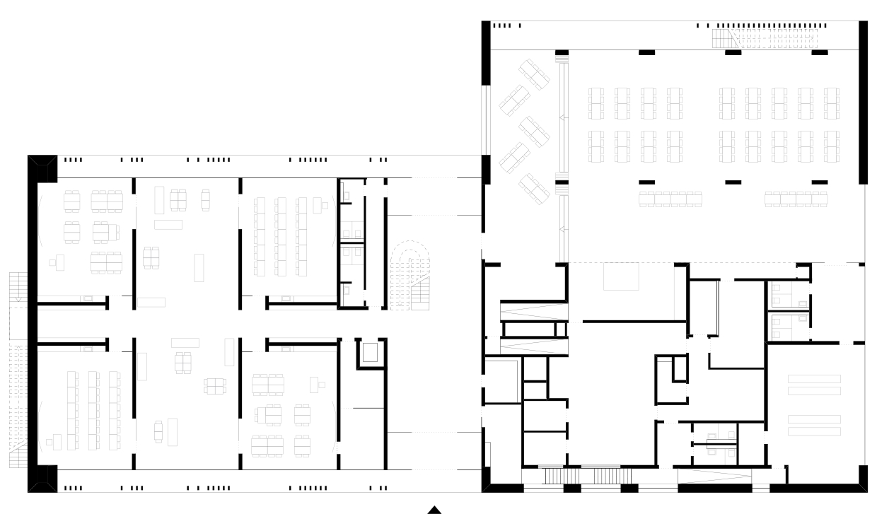
.. Erdgeschoß

... Eingangshof

.... Schulhof