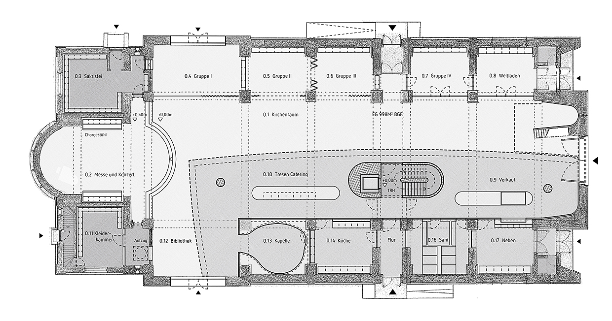
Umnutzung der St. Marienkirche in Warendorf . Wir wurden von der Kirchgemeinde St. Laurentius in Warendorf und dem Bistum Münster mit der Aufgabe betraut, die St. Marienkirche in eine neue Zukunft zu führen. Zentraler Gedanke unseres Entwurfs ist die Verbindung des gemeindlichen Lebens mit der Stadtgesellschaft. Das Erdgeschoß wird ein multifunktionaler Raum, um z.B. Konzerte, Lesungen und Feiern abzuhalten. In den Seitenschiffen können Gruppenarbeiten oder kleinere Versammlungen verschiedenster Art abgehalten werden. Es wird auch weiter sakrale und liturgische Orte in der Kirche geben und der Ort wird somit seiner geschichtlichen Bedeutung auch in der Zukunft gerecht werden. In den oberen Geschossen sind z.B eine Bibliotheksnutzung und Wohnen denkbar.

Auftrag .  Projektentwicklung und Machbarkeitsstudie

Auftraggeber . Pfarrgemeinde St. Laurentius Warendorf

Bistum Münster

. Perspektive öffentlicher Raum

.. Erdgeschoß

...  Schnitt

.... Perspektive Nutzung als  Café

..... Präsentation Gemeinde

...... Perspektive öffentlicher Raum am Abend